About The Perry
Bungalows
| 36 ft. lot
From $889,000
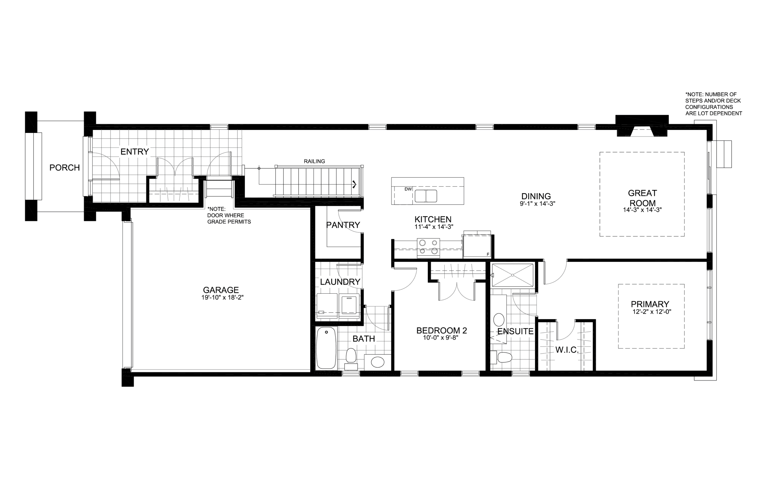
The Perry single family bungalow, in our 36’ Lot Series features 2 bedrooms and 2 bathrooms with a double car garage.
Floorplans
Select a floor:
- ground
- basement
Ground Floor

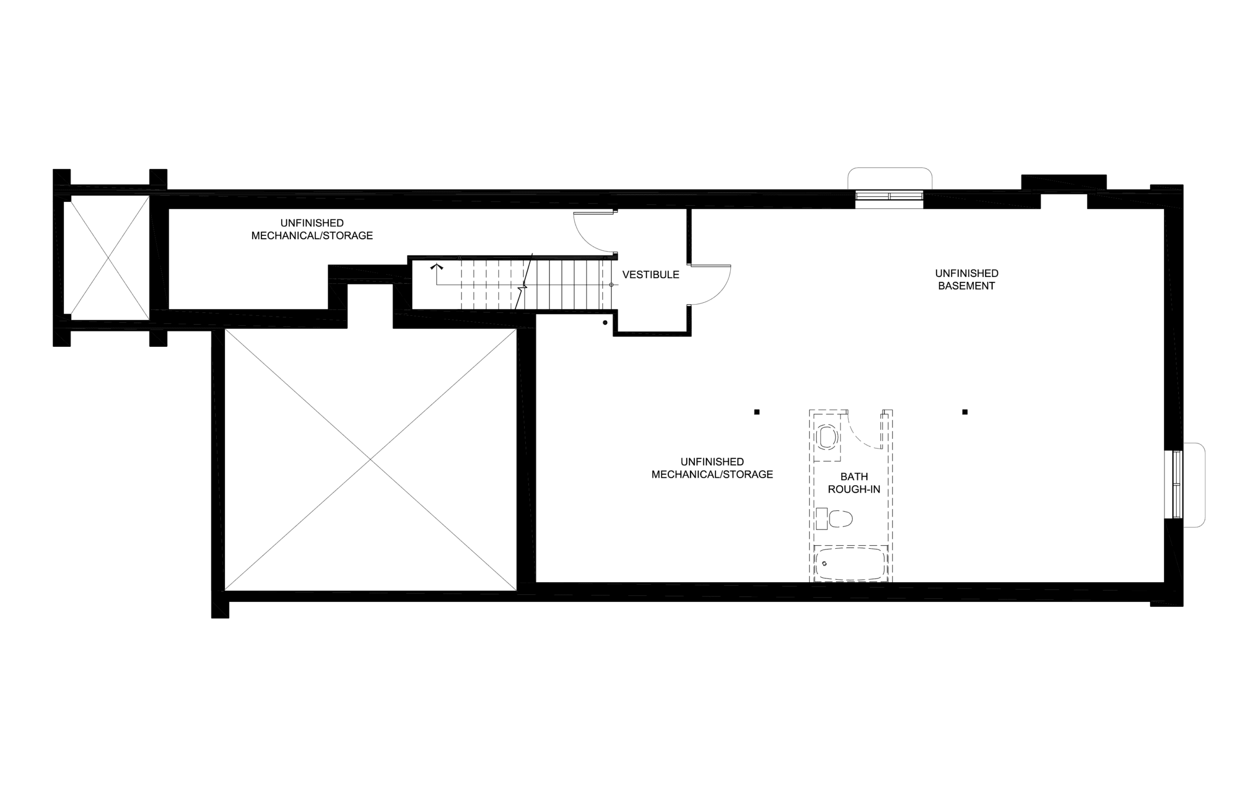
Basement

Visit our sales centre
2003 Bosch Place
Kanata, ON K2W 0N4
Tour our new model homes!
Sales Representative:
Anna Paquette
P 613.672.8154
E apaquette@uniformdevelopments.com

